¡Oportunidad única en Estepona! Local con potencial de cambio de uso a vivienda
Local comercial · Venta
- Habitaciones dobles: 2
- Aseos: 2
- Construidos: 98m2
- Parcela: 98m2
- Calificación energética: En proceso
- Ninguno
- Local comercial
- Estepona Altos de Estepona
- Todo exterior
- Luz
¡Oportunidad única en Estepona! Local con potencial de cambio de uso a vivienda
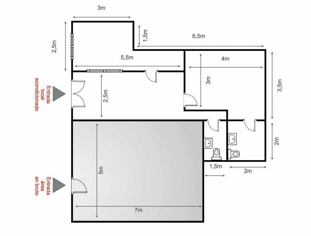
Si buscas un lienzo en blanco con infinitas posibilidades, este local de 98 m2 es para ti. Ubicado en una tranquila zona residencial a tan solo 5 minutos del corazón de Estepona, este espacio destaca por su versatilidad y ubicación estratégica.
Lo que hace especial a esta propiedad:
. Distribución Inteligente: Actualmente, el local se divide en dos áreas de unos 49 m2 cada una. La mitad está completamente habilitada y lista para usar, mientras que la otra mitad se encuentra en bruto, ideal para diseñar desde cero.
. Potencial Residencial: Siguiendo la tendencia de los locales colindantes, este espacio es idóneo para transformarlo en una vivienda moderna tipo loft o mantener un formato híbrido de vivienda y negocio.
. Ubicación Premium: Disfruta de la paz de una zona residencial sin renunciar a la cercanía del centro y todos sus servicios.
Ya sea para emprender tu negocio, crear la casa de tus sueños o ambas, este local es la inversión inteligente que estabas buscando.
Nota: Inmueble registrado como local. Cualquier proyecto de cambio de uso a vivienda deberá ser verificado por el comprador según la normativa vigente del Ayuntamiento de Estepona.
Estimación de gastos a cargo del comprador: La compra está sujeta al Impuesto de Transmisiones Patrimoniales (ITP), (Ley 5/2021 de Tributos Cedidos), cuyo tipo general máximo es del 7%. La base imponible será el mayor valor entre el precio escriturado y el valor de referencia catastral (art. 10 TRLITPAJD). Podrían resultar aplicables tipos reducidos según las circunstancias personales del comprador. Los gastos de escritura pública y de inscripción en el Registro de la Propiedad están regulados por arancel oficial (RD 1426/1989) y (RD 1427/1989) respectivamente. Estimación orientativa entre 500€ y 2.000€ para gastos notariales y entre 250€ y 1.500€ para los registrales. Gestoría (si se contrata de forma voluntaria, honorarios libres): Estimación entre 300€ y 500€. Los gastos de plusvalía municipal (IIVTNU) son a cargo del vendedor (art. 104 TRLRHL). Coste total estimado para el comprador: 215.000€. (+10%)Esta estimación es orientativa y se facilita conforme al art. 20.1.c) TRLGDCU. El importe definitivo dependerá de las circunstancias concretas de la operación y del comprador. Los honorarios de intermediación corren a cargo del vendedor.
Cambio de divisas
- Libras: 0 GBP
- Rublo Ruso: 0 RUB
- Franco Suizo: 0 CHF
- Yuan Chino: 0 CNY
- Dolar: 0 USD
- Corona Sueca: 0 SEK
- Corona Noruega: 0 NOK
- Enero 0 €
- Febrero 0 €
- Marzo 0 €
- Abril 0 €
- Mayo 0 €
- Junio 0 €
- Julio 0 €
- Agosto 0 €
- Septiembre 0 €
- Octubre 0 €
- Noviembre 0 €
- Diciembre 0 €
Cº
