Dúplex reformado y amueblado en el Gòtic
Dúplex · Venta
- Habitaciones dobles: 2
- Baños: 2
- Construidos: 100m2
- Calificación energética: En proceso
- Reformado
- Dúplex
- Barcelona El Gòtic
- Aire acondicionado
- Calefacción
- Todo exterior
- Armarios empotrados
- Amueblado
- Puerta blindada
- Alarma antirobo
- Bar
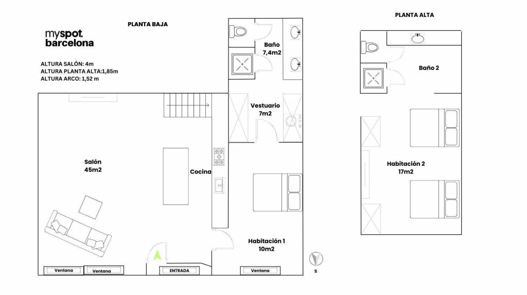
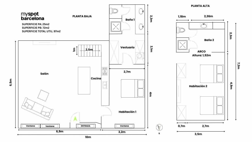
Duplex planta baja interior · 97m2 superficie util · 2 dormitorios · 2 baños en suite · completamente reformado y amueblado · aire acondicionado · calefacción · alarma · acabados de diseño y alta gama
Al lado de una de las plazas más encantadoras del Gòtic, la Plaza de la Mercè, se encuentra este dúplex reformado de 97 m² útiles, que combina la arquitectura histórica de Barcelona con una distribución moderna y funcional. Situado en un edificio clásico de 1855, conserva elementos originales integrados en espacios amplios, líneas claras y un diseño contemporáneo que lo convierte en una pieza única.
Al entrar, nos recibe un salón-comedor impresionante de 45 m², con techos abovedados de 4 metros, vigas de madera y ladrillo visto, aportando carácter y amplitud.
La cocina americana, con bar para cuatro personas y equipada con electrodomésticos premium, se integra de forma natural en este espacio y se convierte en el corazón del hogar, ideal tanto para familias como para reuniones sociales o cenas en pareja.
En la planta baja encontramos, además, un dormitorio doble de 27 m² con baño en suite, equipado con dos lavabos, una amplia ducha y un vestidor generoso con lavadero interior.
Subiendo a la planta superior, de 25 m², se encuentra el segundo dormitorio, preparado para dos camas dobles y acompañado de otro baño en suite con plato de ducha. Una vez más, se ha conservado la arquitectura original, como un arco de ladrillo visto, que aporta al apartamento un aire de diseño singular y romántico.
Otras características: aire acondicionado por split, calefacción eléctrica individual, sistema de alarma, armarios empotrados y soluciones de almacenaje de gran capacidad en toda la vivienda. No es necesario traer muebles: está listo para entrar a vivir. Perfecto para familias con uno o dos niños, parejas, personas solteras o inversores que buscan un inmueble fácil de alquilar.
Un dúplex que combina historia, diseño y una ubicación privilegiada. La amplitud, la calidad de los materiales y la coherencia del proyecto se perciben en cada rincón, creando una sensación de modernidad, confort y hogar. Una opción sólida para quien busca una vivienda con estilo y carácter en una de las zonas más icónicas de Barcelona.
En cumplimiento de la Ley 10/2025, informamos que el PVP no incluye los gastos inherentes a la adquisición: ITP (Cataluña): 37.900€. Cálculo realizado aplicando la tarifa progresiva vigente por tramos de valor (10%). El importe final podría variar por su perfil personal o discapacidad. Gastos de formalización aproximados: Notaría 1.500€ y Registro 1.000€ (variable según arancel), Gestoría 500€. Los honorarios de agencia corren de cuenta de la parte vendedora, salvo acuerdo previo expreso con el comprador.
MySpot Barcelona es una agencia inmobiliaria boutique y multilingüe en Barcelona. Damos un servicio de calidad y atención personalizada que está impulsado por los valores que nos definen: confianza, transparencia y experiencia.
Cambio de divisas
- Libras: 0 GBP
- Rublo Ruso: 0 RUB
- Franco Suizo: 0 CHF
- Yuan Chino: 0 CNY
- Dolar: 0 USD
- Corona Sueca: 0 SEK
- Corona Noruega: 0 NOK
- Enero 0 €
- Febrero 0 €
- Marzo 0 €
- Abril 0 €
- Mayo 0 €
- Junio 0 €
- Julio 0 €
- Agosto 0 €
- Septiembre 0 €
- Octubre 0 €
- Noviembre 0 €
- Diciembre 0 €
Cº
